Offers over £1,100,000 Freehold

Calculate your mortgage repayments

6 bedroom House for sale

Bowlacre Road, Hyde, SK14

  • House
  • 6 bed
  • 4 bath
  • 3 reception

Key Features

  • ARGUABLY THE MOST PRESTIGIOUS ROAD IN GEE CROSS
  • SIX BEDROOM, FOUR EN-SUITE DETACHED HOME
  • JUST UNDER 4,000 SQ FT OF HIGH SPECIFICATION LIVING SPACE
  • GATED DRIVEWAY WITH PARKING FOR UP TO TEN VEHICLES & DOUBLE GARAGE
  • OPEN PLAN KITCHEN WITH NEFF APPLIANCES & UNDERFLOOR HEATING
  • LARGE REAR SOUTH FACING GARDEN WITH OPEN ASPECT & PLANNING PERMISSION TO EXTEND
  • COUNCIL TAX BAND: G

Description

Set on Bowlacre Road, one of the area’s most prestigious and sought-after addresses, this exceptional six-bedroom, four-bathroom detached residence offers an outstanding blend of space, specification and lifestyle.

Positioned on the doorstep of Werneth Low Country Park, the property enjoys the perfect balance of semi-rural living whilst remaining within a short commute of Manchester City Centre. Gee Cross itself offers a wonderful village feel, with a selection of bistros, pubs and amenities, ideal for relaxed weekend walks and dining close to home.

Constructed just seven years ago, the home has been thoughtfully designed and finished to a high specification throughout, extending to just under 4,000 sq ft of beautifully appointed accommodation. The property immediately impresses with its striking kerb appeal, featuring a gated frontage, generous driveway providing parking for up to ten vehicles, and a commanding façade enhanced by feature glazing.

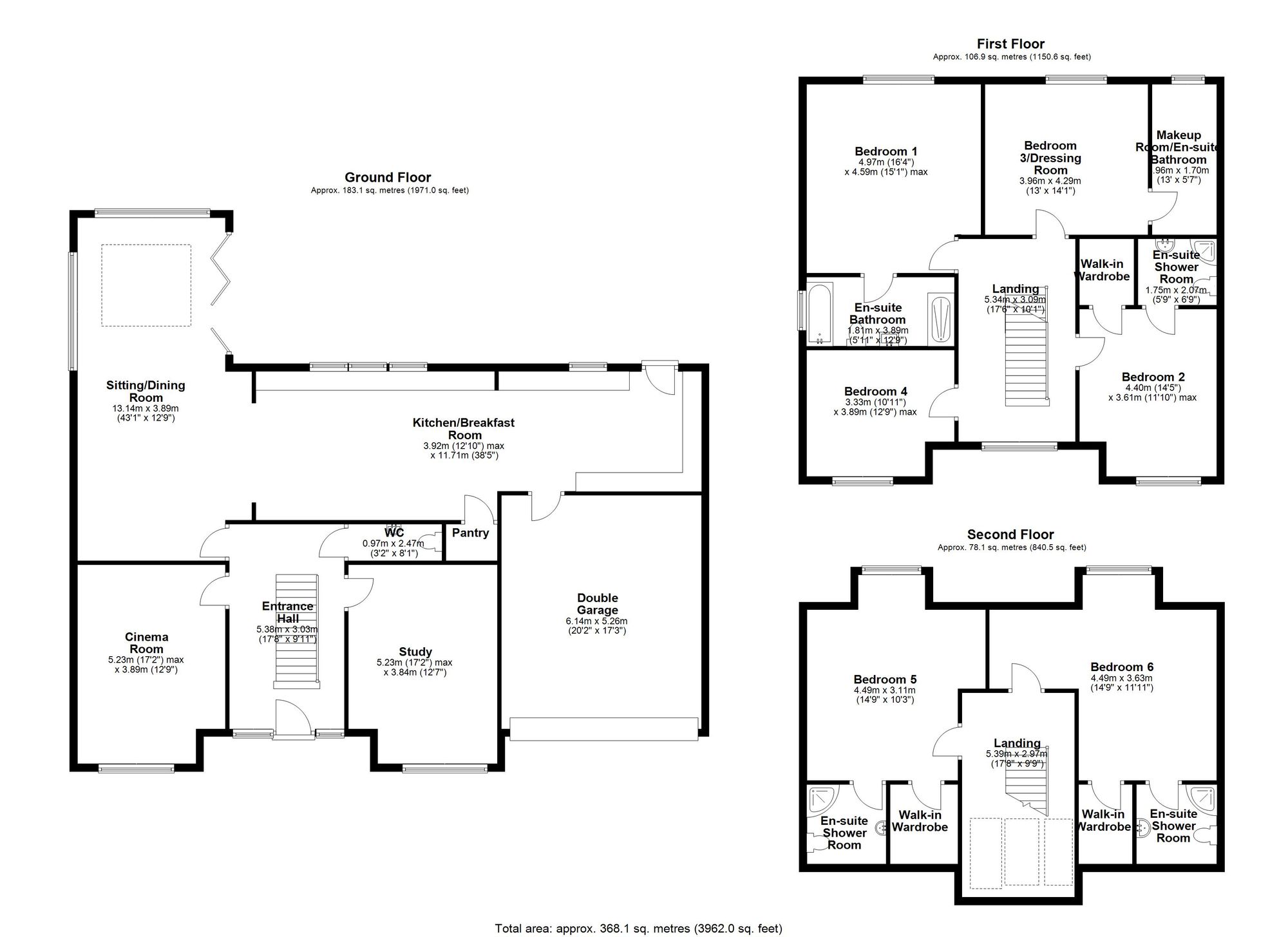
Internally, the ground floor is perfectly suited to modern family living and entertaining. A stunning open-plan kitchen/breakfast room, fitted with premium Neff appliances, forms the heart of the home, complemented by spacious living and dining areas with direct access to the garden. Additional accommodation includes a cinema room, study and practical utility space, all benefitting from wet system underfloor heating throughout the ground floor.

The bedroom accommodation is both spacious and thoughtfully arranged. The principal suite provides a generous and well-proportioned bedroom, complemented by a stylish en-suite, creating a comfortable and private retreat.

Bedrooms two, five and six each benefit from walk-in wardrobes and en-suites, making them ideal for family members or guests. Bedroom three is currently configured as a bespoke dressing room, with the adjoining en-suite utilised as a dedicated makeup room, though this could be easily reinstated to create a further en-suite bedroom if required.

Externally, the property truly comes into its own. To the rear is a substantial, south-west facing garden, predominantly laid to lawn, offering an excellent sense of space and privacy. The plot enjoys an open aspect, creating a more peaceful, semi-rural feel than typically found in such a well-connected location. A generous patio area sits directly off the main living space, ideal for outdoor dining and entertaining, while the expansive lawn provides the perfect setting for families and children.

Further benefits include a double garage with electric door and internal access, providing both convenience and security, in addition to the extensive driveway.

Further enhancing the opportunity, the current vendor has planning permission in place to extend the ground floor, allowing future owners to tailor and expand the living space if desired.

This is a rare opportunity to acquire a substantial, modern home in a prime residential setting, combining luxury living with a superb lifestyle location.


Location


Floorplan

Floorplan

EPC

EPC for Bowlacre Road, Hyde, SK14

*This mortgage calculator is provided for general information purposes only. It's intended to provide you with an estimate of your potential mortgage payments and does not constitute an offer of finance or advice. The calculations are based on the information you provide and do not take into account your individual needs and circumstances.

The calculator does not include all the costs you will need to pay when taking out a mortgage. Your actual mortgage payments may be higher or lower than the estimates provided by this calculator. The interest rates used in the calculations are subject to change and may not reflect the actual rates available in the market.

Please note that the calculator does not consider changes in interest rates over time, early repayment charges, or any other fees and charges that may apply to your mortgage. You should always seek professional advice before making any financial decisions.

Remember, your home may be repossessed if you do not keep up repayments on your mortgage.

Calculate Your Stamp Duty
£
Results
Stamp Duty To Pay:
Effective Rate:
Tax Band % Taxable Sum Tax
Share this property